首页 > 教程资讯 > 【干货】产品结构设计常见的结构形式!

【干货】产品结构设计常见的结构形式!

2023-02-11 15:14:38 分类:设计资讯 4686 0 0 原创

产品创意极大的便捷了大众生活,满足了大众的审美需求,提升了用户的使用体验,很大程度上进一步加强了企业的品牌印象升级。在大众更多关注产品创意的时候,往往容易忽略完美的创意是靠产品结构设计来实现和保障的。产品结构设计是产品创意实现,产品品质及品牌的最后一道防线。

深圳品索工业设计,设计部为客户研发设计的便捷微型洗衣机结构设计爆炸图

为了帮助各位工业设计/产品设计/机械设计/模具设计专业的同学,出入行的设计师,以及对美学和设计感兴趣的爱好者,更好的了解产品创意及实现,专门整理的工业设计中的产品结构设计常用产品结构形式,分享大家。
如想系统深入了解产品结构设计师行业(结构设计流程/结构设计师职业),请详阅文章底部的【产品结构设计专业介绍】文章链接。

1、壳体
壳体,在产品结构件上面是指带一定壁厚的零件。壳体的壁厚一般是一致大小的,或者局部光滑过渡,壁厚也一般被称为料厚。采用液压注塑机台时,大部分的注塑材料注塑件,基本壁厚都是在0.8-3.2mm之间。塑胶件壁厚的作用,①使得零件具有一定的强度、刚度,以满足零件的使用要求,成型时,②具有良好的流动状态(如壁不能过薄),③合理的壁厚使得零件能够顺利地从模具中顶出,④满足镶件固定及零件装配等强度的要求,⑤防止零件翘曲变形,⑥在音响设计上,壁厚会影响音质,⑦合理的壁厚,才能使得产品通过相关测试,比如跌落等。
图 充电宝的料厚1.8mm

图 充电宝底壳料厚过渡处理

常见的钣金件SPCC、SECC、SGCC、不锈钢SUS301、不锈钢SUS304、SUS316、磷青铜、铍铜等。材料的厚度,SECC材料一般作为产品外壳,厚度从0.6mm-2mm,不锈钢材料根据使用功能厚度从0.15mm~2mm都有使用,磷青铜和铍铜一般用做弹片,使用材料的厚度一般是0.15mm~0.2mm左右。

图 PCBA上的金属屏蔽罩

图 各式结构的金属弹片

图 钣金机箱产品

2、止口
止口,可理解为上下壳结合处的止动结构,也称为唇,分为公止口与母止口。公止口,一般在塑胶件靠内边沿通过加胶形成。母止口,一般在塑胶件靠内边沿通过减胶形成。

图 止口配合图

止口设计的基本原则:公止口一般长在相对厚度较薄的胶件上。母止口一般做在相对厚度较厚的胶件上,可减轻或避免因壳体材料厚度不均,在加工成型时候产生厚薄印,造成产品不良率过高或反复修改结构设计方案和模具而导致产品研发周期过长。

图 公止口尺寸图

图 止口配合经验尺寸
学工业设计到品索!品索品牌介绍告诉你为什么!


3、反止口
止口与反止口配合使用。反止口的作用与止口相反,如下图所示:反止口是防止上(下) 壳朝外变形,同时防止下(上)壳朝内缩。反止口是做在母止口的那个壳上。因此,反止口也被称为管位骨、反插骨。设计反止口时要注意离卡扣单边8.0mm,至少6.0mm,因为扣位要变形。

图 反止口配合经验尺寸

4、美工线
美工线设计尺寸:0.3*0.3mm,作用主要为了减小断差( 面刮及底刮)。断差是因为模具加工及装配造成的 , 如果面壳边大于底壳, 称之为面刮;底壳边大于面壳 , 则称之为底刮. 如下图, 可接受的面刮<0.15mm,可接受的底刮<0.10mm.从外观看, 面刮不易察觉, 优选面刮, 且要减小 。刮面断差, 最好多次调模, 消除断差.

图 面刮与底刮示意图

5、超声波线
在特殊工艺情况下, 止口会相应做一些修改, 如超声焊接, 常会增加焊接填胶凸台, 常见结构尺寸如下。超声焊接属于胶体熔连, 材料最好选用同种胶体. 结构相接位置要留有下压空间 , 填胶空间( 下压间隙<填胶深度), 有时把填胶凸台做成分段结构 , 防止填胶体积不能超过槽体积 , 加工后不能有外观不良现象。

图 各种超声波线的设计尺寸

6、扣位
扣位也称卡扣,是指通过倒扣类形状的相互配合使两件或两件以上的部件能够相互“扣”在一起的结构,扣位会使装配变得更简单快捷。扣位设计基本原则:① 扣位的强度要够,避免组装损坏。②扣合量(扣位配合量)要够,不然作用不明显。③扣位要有拆装的变形空间。④整机的扣位分布要均匀。⑤胶壳强度较弱的地方,增加扣位有补强作用。

图 手环充电器扣位连接

图 常见的卡扣尺寸

图 装饰件卡扣

图 内部隐藏卡扣

图 常见面底壳配合卡扣

图 强脱 卡扣
图 手感卡扣

7、加强筋
加强筋的作用,加强外壳的强度,防止外壳变形,或者连接内外框框和外壁的使外壳这两部分连接在一起,可增强外壳的强度,同时在注塑的时候,可以使得塑胶水通过加强筋流道内部的框框等等。

图 手提洗衣机加强筋

图 宠物喂食器加强筋

【设计实训】Proe/Creo 结构设计实训


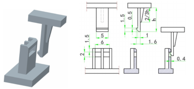
8、司筒司柱
司筒司柱,也通常叫为螺丝柱,或者叫BOSS柱,即凸出的柱子, 通常指螺丝柱及紧配柱, 是固定导向结构。螺丝柱有两种: 自攻牙及机牙。

图 宠物喂食器的司筒司柱

图 自攻螺丝柱内径取值规范

图 定位柱设计范例

图 热熔、镶螺母型塑胶螺丝柱

图 螺丝柱固定、胶柱限位PCBA

9、产品结构设计爆炸图示意
产品结构爆炸图,工业\结构设计师必备技能!

点赞 分享

评论

全部评论 0

消息提醒

是否删除该评论!

发私信

可输入300个字